Сайт может перестать корректно работать
Часть функционала сайта перестанет работать. Мы не сможем хранить персональные настройки и рекомендации.
Для полноценной работы всего сайта рекомендуем принять все cookie или выполнить настройку.
Отклонить
Настроить
Принять соглашение
Где искать:
Везде
Банковские продукты
Курсы валют
Статьи
MYFIN Справочник
Компании
Банковские отделения
Услуги для бизнеса
Лизинг
Авто
Деньги в долг
Инвестиции
Описание
Год постройки:1970
Материал стен:Кирпич
Этаж:3 из 3
Вода:Да
Отопление:Да
Электричество:Да
Возможное использование объекта:Офис, офис+склад, Учебный центр
Зарегистрировать юридический адрес:Да
Пощадь:349.27м²
Цена за м²:21р. м²

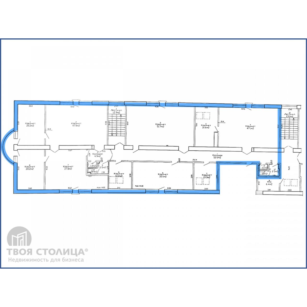
Офисные помещения 349.27 кв.м. комбинированной планировкой: open space/ кабинеты, расположенные на 3-м этаже административного здания по адресу Подшипниковый проезд 9.Собственная парковка около здания
Качественная отделка офисов:
- керамическая плитка на полу;
- стены оштукатурены/окрашены;
- потолок окрашен/"армстронг";
- высокий уровень инсоляции;
- 2 группы с/у
Инженерия и коммуникации здания:
- система кондиционирования в каждом кабинете;
- разведены электрические и слаботочные сети,
- провайдеры на выбор (А1, Белтелеком);
- видеонаблюдение;
- пожарная сигнализация.
Местоположение:
в 4-5 остановках от ст. метро Партизанская и Автозаводская (остановка общественного транспорта "Западный поселок" в 3 минутах ходьбы от административного здания)
Обилие зелени и отсутствие сквозного трафика создают уютную обстановку внутри шумного мегаполиса
Арендатор не оплачивает услуги агентства.

Юридический адрес: Минск, пр. Независимости, д. 68, пом. 2, ком. 131

ОДО «Твоя столицаконсалт», лицензия выд. Минюстом 20.09.2006 № 02240/129, УНП 190285638, договор РУ от 09.02.2026 №15/6а Подробнее

Офис - аренда. г. Минск, проезд. Подшипниковый 9

7 334.67 р.
ТВОЯ СТОЛИЦАКОНСАЛТ
ТВОЯ СТОЛИЦАКОНСАЛТ ОДО
Коммерческая недвижимость
https://t-s.by
Минск, пр. Независимости, д. 68, пом. 2, ком. 131
УНП: 190285638
Лицензия: 02240/129
14.04.2026, 10:21
Оставьте заявку и получите:
Отправить заявку
Заказать звонок
Оформление заявки
Оставьте заявку и получите:
Отправить заявку