Сайт может перестать корректно работать
Часть функционала сайта перестанет работать. Мы не сможем хранить персональные настройки и рекомендации.
Для полноценной работы всего сайта рекомендуем принять все cookie или выполнить настройку.
Отклонить
Настроить
Принять соглашение
Где искать:
Везде
Банковские продукты
Курсы валют
Статьи
MYFIN Справочник
Компании
Банковские отделения
Услуги для бизнеса
Лизинг
Авто
Деньги в долг
Инвестиции
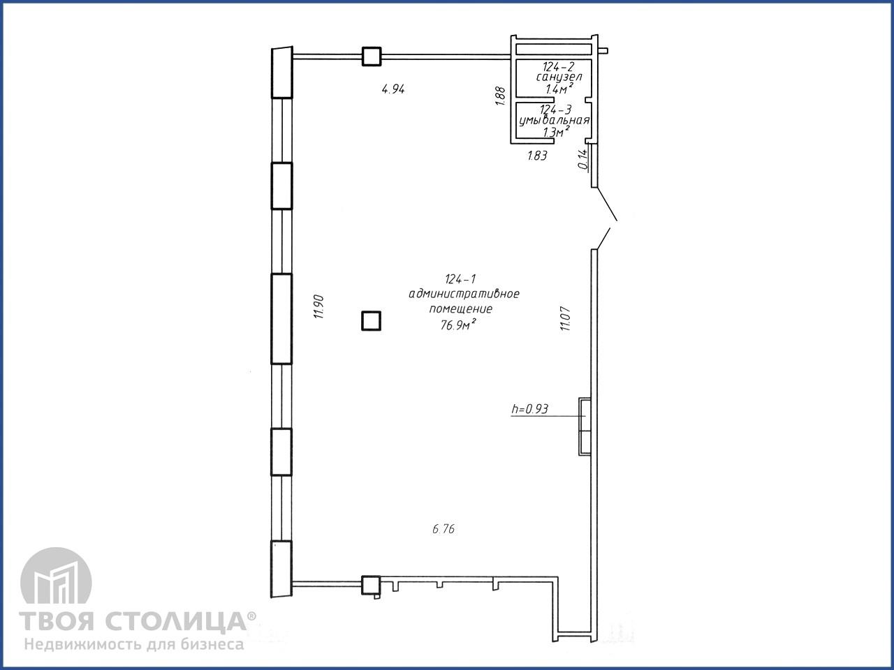
Описание
Год постройки:2019
Материал стен:Керамзитобетонные блоки
Этаж:9 из 9
Вода:Да
Отопление:Да
Электричество:Да
Возможное использование объекта:Офис, Сфера услуг, Учебный центр
Зарегистрировать юридический адрес:Да
Пощадь:79.6м²
Цена за м²:43.17р. м²

Административное помещение площадью 79.6 кв.м. в современном бизнес-центре "Ocean".
Изолированные офисный блок, собственный санузел в каждом блоке, высота потолков 3 м., высокая степень инсоляции, .
Администрирование здания с функцией охраны, видео-наблюдение, доступ 24/7.
В здании располагаются торговые помещения, объекты питания, фитнес-центр GYM24. Функционирует супермаркет "Евроопт".
Гостевая парковка на 117 машиномест, подземный паркинг на 383 машиноместа.
Хорошая транспортная доступность, шаговая доступность ст.м. "Грушевка" и "Пл. Франтишка Богушевича".
Арендатор не оплачивает услуги агентства.

Юридический адрес: Минск, пр. Независимости, д. 68, пом. 2, ком. 131

ОДО «Твоя столицаконсалт», лицензия выд. Минюстом 20.09.2006 № 02240/129, УНП 190285638, договор РУ от 16.05.2024 №51/2а Подробнее

Офис - аренда. г. Минск, просп. Дзержинского 3

3 436.47 р.
ТВОЯ СТОЛИЦАКОНСАЛТ
ТВОЯ СТОЛИЦАКОНСАЛТ ОДО
Коммерческая недвижимость
https://t-s.by
Минск, пр. Независимости, д. 68, пом. 2, ком. 131
УНП: 190285638
Лицензия: 02240/129
20.06.2024, 15:24
Оставьте заявку и получите:
Отправить заявку
Заказать звонок
Оформление заявки
Оставьте заявку и получите:
Отправить заявку