Сайт может перестать корректно работать
Часть функционала сайта перестанет работать. Мы не сможем хранить персональные настройки и рекомендации.
Для полноценной работы всего сайта рекомендуем принять все cookie или выполнить настройку.
Отклонить
Настроить
Принять соглашение
Где искать:
Везде
Банковские продукты
Курсы валют
Статьи
MYFIN Справочник
Компании
Банковские отделения
Услуги для бизнеса
Лизинг
Авто
Деньги в долг
Инвестиции
Описание
Год постройки:2002
Материал стен:Кирпич
Этаж:5 из 5
Вода:Да
Отопление:Да
Электричество:Да
Возможное использование объекта:Офис
Зарегистрировать юридический адрес:Да
Пощадь:305.9м²
Цена за м²:43.38р. м²

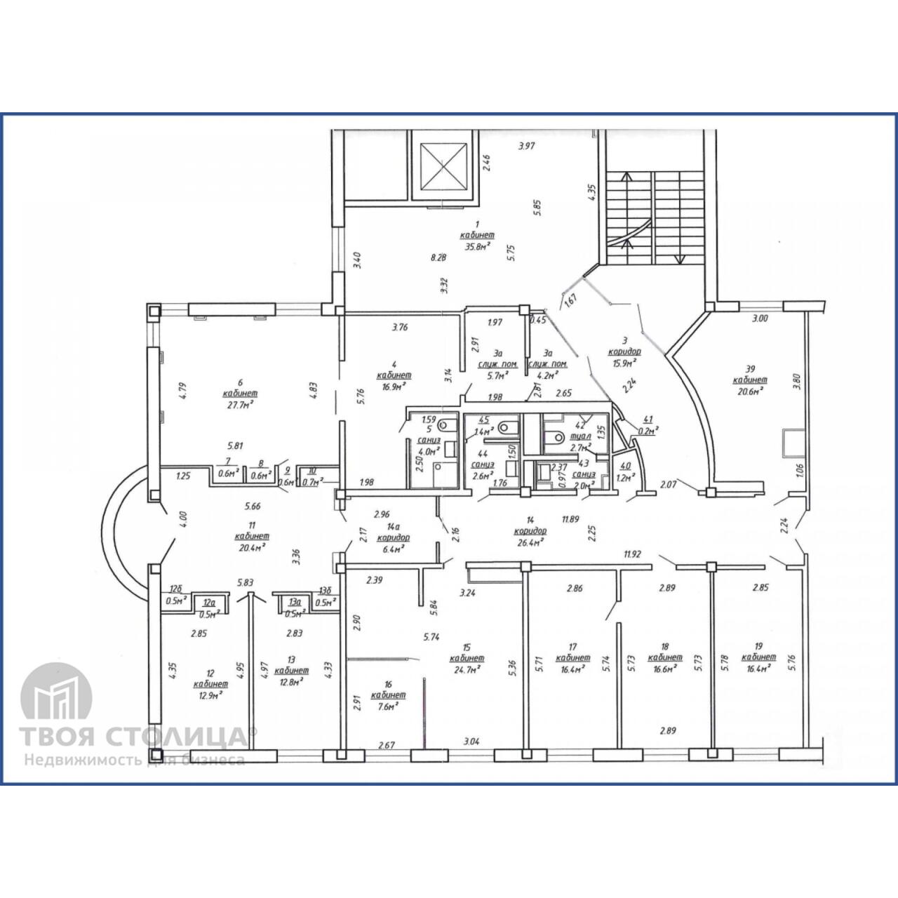
Аренда изолированного офисного блока общей площадью 305,9м2. 
Офисный блок представлен кабинетной системой. Кабинеты светлые, аккуратные. Установлены кондиционеры. Есть своя серверная, комната для организации мини-кухни, свой санузел с душевой кабиной, подсобное помещение. В офисах проведены телефонные линии, оптоволоконные сети.
В бизнес центре круглосуточная охрана, работают администраторы. Есть платный паркинг у здания с почасовой оплатой.
Рядом с бизнес центром располагаются банки, объекты общественного питания, гостиница.

Развитая транспортная доступность. В шаговой доступности ст. м. Фрунзенская, Площадь Богушевича и Площадь Ленина.

Арендатор не оплачивает услуги агентства

Юридический адрес: Минск, пр. Независимости, д. 68, пом. 2, ком. 131

ОДО «Твоя столицаконсалт», лицензия выд. Минюстом 20.09.2006 № 02240/129, УНП 190285638, договор РУ от 18.11.2025 №101/6а Подробнее

Офис - аренда. г. Минск, ул. Немига 38

13 270.65 р.
ТВОЯ СТОЛИЦАКОНСАЛТ
ТВОЯ СТОЛИЦАКОНСАЛТ ОДО
Коммерческая недвижимость
https://t-s.by
Минск, пр. Независимости, д. 68, пом. 2, ком. 131
УНП: 190285638
Лицензия: 02240/129
Сегодня, 10:31
Оставьте заявку и получите:
Отправить заявку
Заказать звонок
Оформление заявки
Оставьте заявку и получите:
Отправить заявку