Сайт может перестать корректно работать
Часть функционала сайта перестанет работать. Мы не сможем хранить персональные настройки и рекомендации.
Для полноценной работы всего сайта рекомендуем принять все cookie или выполнить настройку.
Отклонить
Настроить
Принять соглашение
Где искать:
Везде
Банковские продукты
Курсы валют
Статьи
MYFIN Справочник
Компании
Банковские отделения
Услуги для бизнеса
Лизинг
Авто
Деньги в долг
Инвестиции
Описание
Год постройки:2007
Материал стен:Керамзитобетонные блоки
Этаж:7 из 7
Вода:Да
Отопление:Да
Электричество:Да
Возможное использование объекта:Визовый центр, Детский центр, Офис, Сфера услуг, Учебный центр
Зарегистрировать юридический адрес:Да
Пощадь:353м²
Цена за м²:33.42р. м²

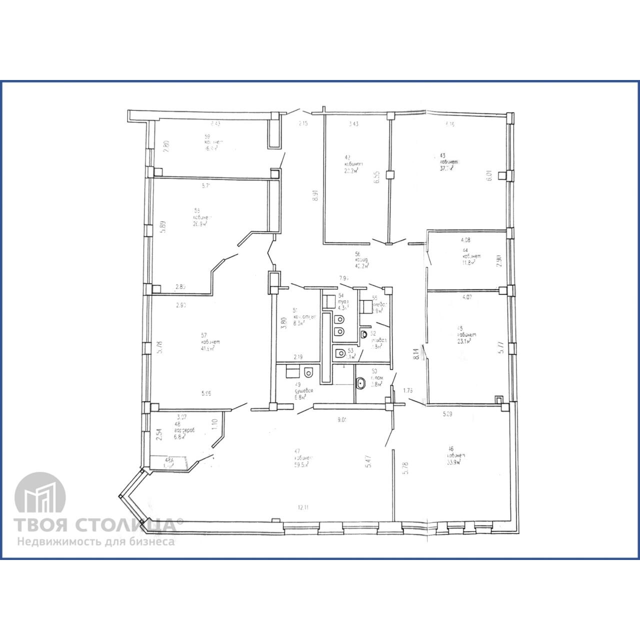
Сдается в аренду офис в БЦ "Инфо" по адресу ул. Пономаренко 35а, площадь 353 м2, с мебелью и необходимым оборудованием "под ключ". Изолированный офисный блок кабинетной планировки расположен на 4 этаже. Кабинет руководителя повышенной комфортности с зоной ресепшн, своим санузлом и душевой, также из кабинета руководителя имеется прямой доступ в просторную  переговорную комнату. Помимо санузлов общего доступа на этаже в блоке имеются еще два санузла с итальянской сантехникой для своих сотрудников. Также имеется оборудованная мини-кухня на 6 посадочных мест с подводом воды .

Юридический адрес: Минск, пр. Независимости, д. 68, пом. 2, ком. 131

ОДО «Твоя столицаконсалт», лицензия выд. Минюстом 20.09.2006 № 02240/129, УНП 190285638, договор РУ от 03.02.2026 №11/6а Подробнее

Офис - аренда. г. Минск, ул. Пономаренко 35

11 797.61 р.
ТВОЯ СТОЛИЦАКОНСАЛТ
ТВОЯ СТОЛИЦАКОНСАЛТ ОДО
Коммерческая недвижимость
https://t-s.by
Минск, пр. Независимости, д. 68, пом. 2, ком. 131
УНП: 190285638
Лицензия: 02240/129
14.04.2026, 10:22
Оставьте заявку и получите:
Отправить заявку
Заказать звонок
Оформление заявки
Оставьте заявку и получите:
Отправить заявку