Сайт может перестать корректно работать
Часть функционала сайта перестанет работать. Мы не сможем хранить персональные настройки и рекомендации.
Для полноценной работы всего сайта рекомендуем принять все cookie или выполнить настройку.
Отклонить
Настроить
Принять соглашение
Где искать:
Везде
Банковские продукты
Курсы валют
Статьи
MYFIN Справочник
Компании
Банковские отделения
Услуги для бизнеса
Лизинг
Авто
Деньги в долг
Инвестиции
Описание
Год постройки:2009
Материал стен:Газосиликатные блоки
Этаж:7 из 7
Вода:Да
Отопление:Да
Электричество:Да
Возможное использование объекта:Магазин, Парикмахерская, Стрит Ритейл, Сфера услуг
Зарегистрировать юридический адрес:Да
Пощадь:70.6м²
Цена за м²:2834.1р. м²

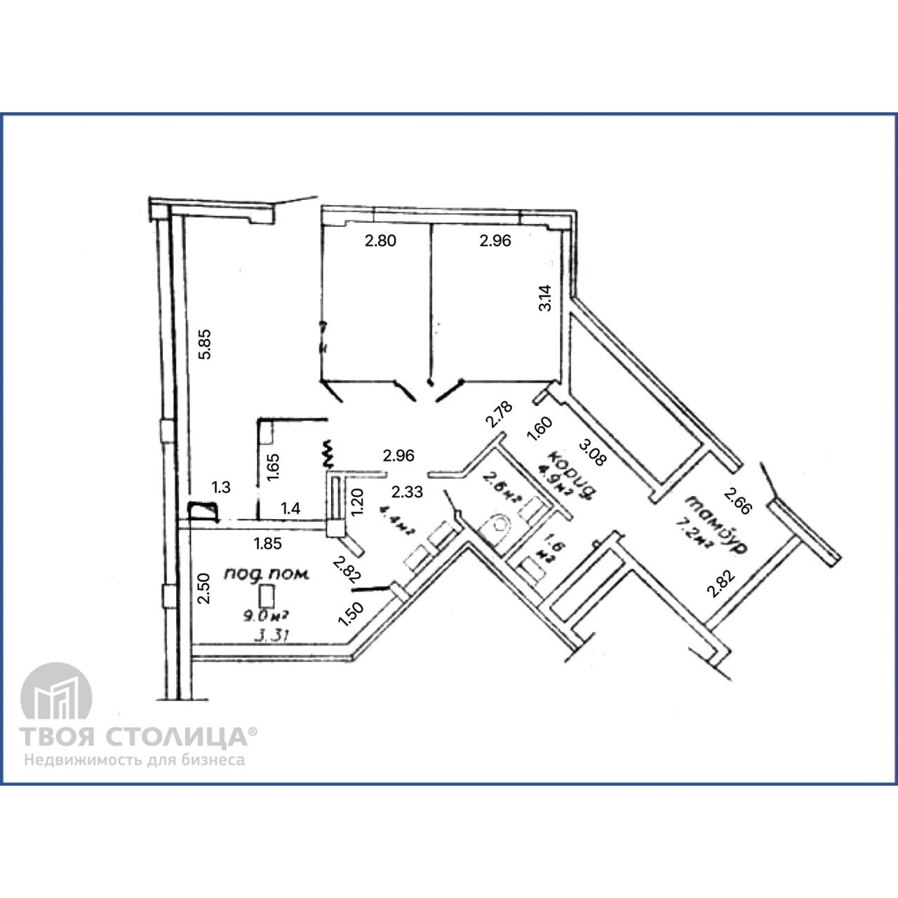
Административно- торговое помещение 70.6 кв.м. на ул. И. Шамякина, 9. Два отдельных входа. Доступ 24/7.
Продается салон красоты с отличным дизайнерским ремонтом в цокольном этаже жилого дома.
Помещение  состоит из зоны ресепшена и четырех меблированных кабинетов для проведения косметологических и парикмахерских услуг. Имеется собственный санузел, комната приема пищи, подсобное помещение .Оснащено всеми необходимыми инженерными коммуникациями.
Также объект может использоваться для целей торговли, в качестве офисного помещения, стрит ритейла.
Помещение расположено в заселенном микрорайоне Сухарево-4 с ориентацией на ул. И. Шамякина.
Хорошая транспортная доступность.
Покупатель не оплачивает услуги агентства.
 

Юридический адрес: Минск, пр. Независимости, д. 68, пом. 2, ком. 131

ОДО «Твоя столицаконсалт», лицензия выд. Минюстом 20.09.2006 № 02240/129, УНП 190285638, договор РУ от 16.03.2026 №104/6 Подробнее

Сфера услуг - продажа. г. Минск, ул. Шамякина 9

200 087.46 р.
ТВОЯ СТОЛИЦАКОНСАЛТ
ТВОЯ СТОЛИЦАКОНСАЛТ ОДО
Коммерческая недвижимость
https://t-s.by
Минск, пр. Независимости, д. 68, пом. 2, ком. 131
УНП: 190285638
Лицензия: 02240/129
14.04.2026, 10:23
Оставьте заявку и получите:
Отправить заявку
Заказать звонок
Оформление заявки
Оставьте заявку и получите:
Отправить заявку