Сайт может перестать корректно работать
Часть функционала сайта перестанет работать. Мы не сможем хранить персональные настройки и рекомендации.
Для полноценной работы всего сайта рекомендуем принять все cookie или выполнить настройку.
Отклонить
Настроить
Принять соглашение
Где искать:
Везде
Банковские продукты
Курсы валют
Статьи
MYFIN Справочник
Компании
Банковские отделения
Услуги для бизнеса
Лизинг
Авто
Деньги в долг
Инвестиции
Описание
Год постройки:2022
Материал стен:Блоки из ячеистого бетона
Этаж:15 из 15
Вода:Да
Отопление:Да
Электричество:Да
Возможное использование объекта:Детский центр, Кафе, Магазин, Офис, офис+склад, Парикмахерская, Стрит Ритейл, Сфера услуг, Учебный центр
Зарегистрировать юридический адрес:Да
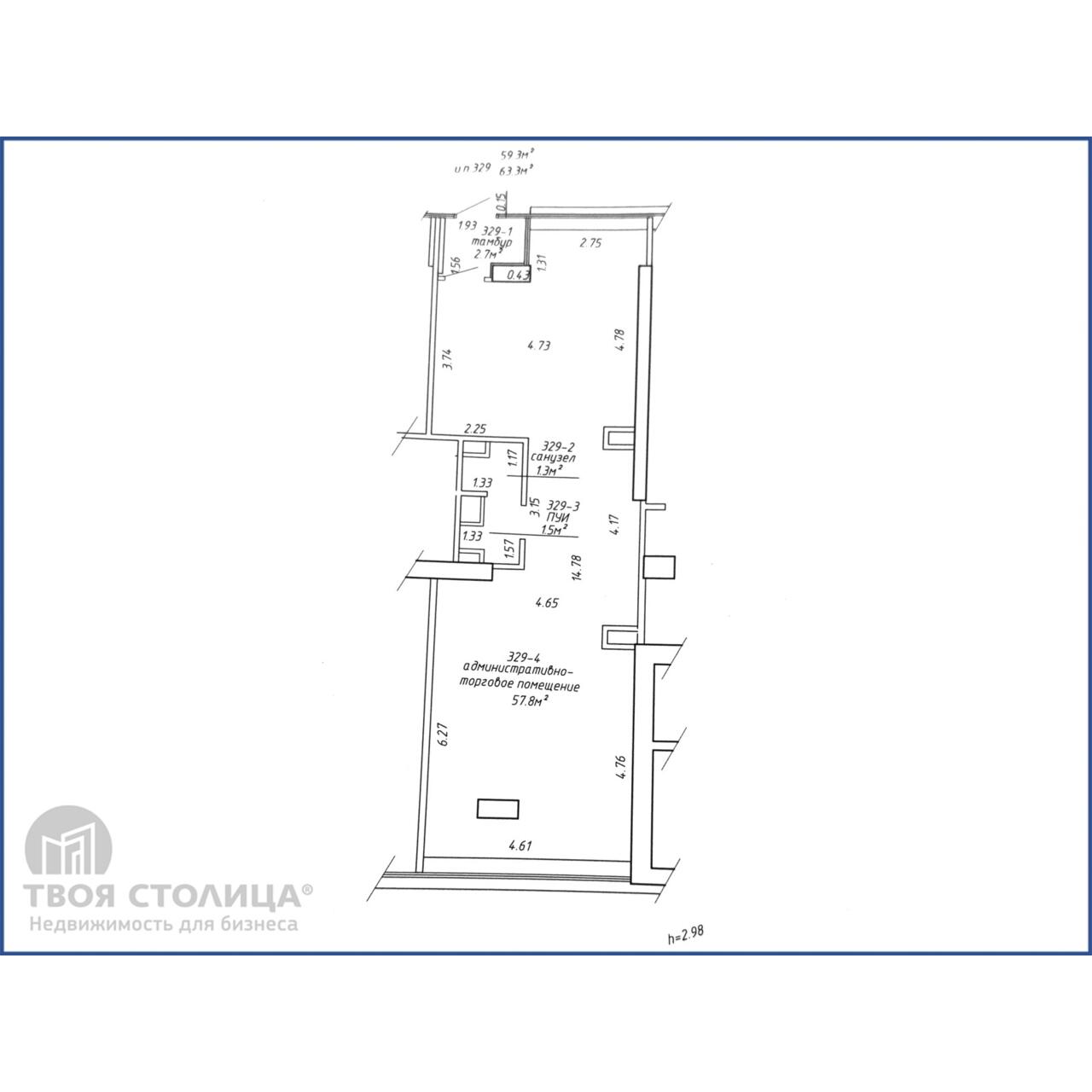
Пощадь:63.3м²
Цена за м²:42.46р. м²

Административно-торговое помещение площадью 63,3 кв.м.  по адресу ул. Кропоткина, 59 с хорошей отделкой: на полу плитка, стены окрашены, потолок армстронг.
Выделенная мощность 13 кВт.

Помещение оборудовано инженерными и коммуникационными системами: электричество, центральное отопление, система приточно-вытяжной вентиляции с системой рекуперации, пожарная сигнализация, высокоскоростной интернет, собственный санузел.  Общественная плоскостная парковка у здания без закрепления машиномест, имеется возможность подъезда непосредственно к помещению для погрузочно-разгрузочных работ.     
Арендатор не оплачивает услуги агентства.

 

Юридический адрес: Минск, пр. Независимости, д. 68, пом. 2, ком. 131

ОДО «Твоя столицаконсалт», лицензия выд. Минюстом 20.09.2006 № 02240/129, УНП 190285638, договор РУ от 10.12.2025 №109/6а Подробнее

Торговые - аренда. г. Минск, Кропоткина 59

2 687.56 р.
ТВОЯ СТОЛИЦАКОНСАЛТ
ТВОЯ СТОЛИЦАКОНСАЛТ ОДО
Коммерческая недвижимость
https://t-s.by
Минск, пр. Независимости, д. 68, пом. 2, ком. 131
УНП: 190285638
Лицензия: 02240/129
Сегодня, 10:30
Оставьте заявку и получите:
Отправить заявку
Заказать звонок
Оформление заявки
Оставьте заявку и получите:
Отправить заявку