Сайт может перестать корректно работать
Часть функционала сайта перестанет работать. Мы не сможем хранить персональные настройки и рекомендации.
Для полноценной работы всего сайта рекомендуем принять все cookie или выполнить настройку.
Отклонить
Настроить
Принять соглашение
Где искать:
Везде
Банковские продукты
Курсы валют
Статьи
MYFIN Справочник
Компании
Банковские отделения
Услуги для бизнеса
Лизинг
Авто
Деньги в долг
Инвестиции
Описание
Год постройки:2009
Материал стен:Блоки из ячеистого бетона
Этаж:3 из 3
Отопление:Да
Электричество:Да
Возможное использование объекта:Магазин, Торговый центр
Зарегистрировать юридический адрес:Да
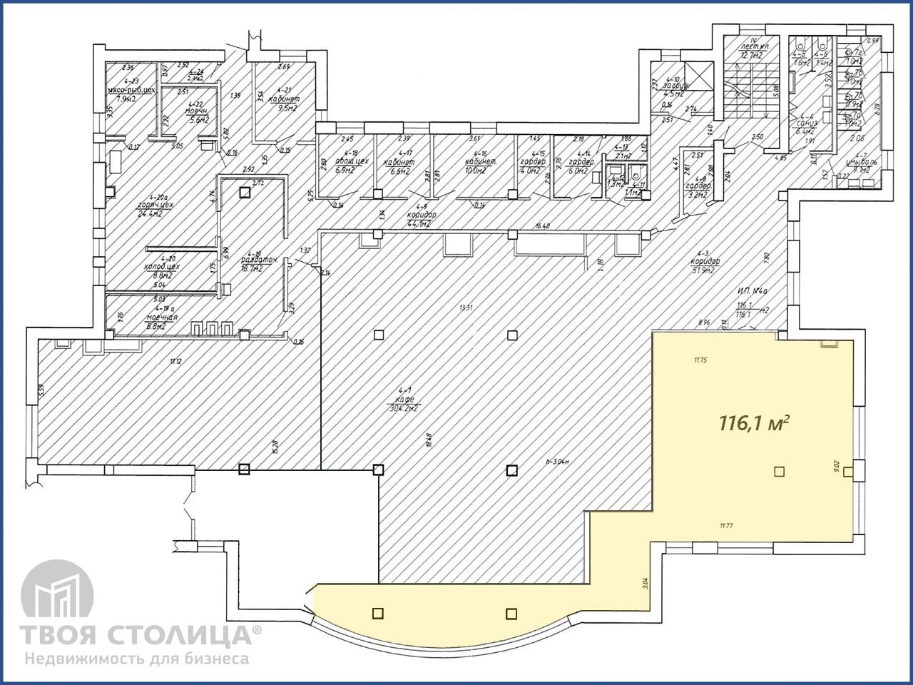
Пощадь:116.1м²
Цена за м²:30р. м²

Торговое помещение, площадью 116,1 кв.м. на втором этаже торгового центра.
Помещение с отделкой, с входом внутри здания. Расположено в густонаселенном районе Минска, с хорошей проходимостью.
Объект оборудован современными инженерными и коммуникационными системами:
- приточно-вытяжная вентиляция;
- оптоволоконная сеть;
- система пожаротушения.
Рядом с торговым центром организована парковка без закрепления машиномест. Помещение подходит для размещения объектов торговли, детского центра, различных курсов, сферы услуг.
Возле торгового центра находятся остановки общественного транспорта, удобный выезд на МКАД.
На фасадной части здания есть возможность установки рекламной конструкции.
Арендатор не оплачивает услуги агентства. 

Юридический адрес: Минск, пр. Независимости, д. 68, пом. 2, ком. 131

ОДО «Твоя столицаконсалт», лицензия выд. Минюстом 20.09.2006 № 02240/129, УНП 190285638, договор РУ от 18.09.2025 №76/6а Подробнее

Торговые - аренда. г. Минск, ул. Лучины 44

3 483 р.
ТВОЯ СТОЛИЦАКОНСАЛТ
ТВОЯ СТОЛИЦАКОНСАЛТ ОДО
Коммерческая недвижимость
https://t-s.by
Минск, пр. Независимости, д. 68, пом. 2, ком. 131
УНП: 190285638
Лицензия: 02240/129
21.06.2024, 08:20
Оставьте заявку и получите:
Отправить заявку
Заказать звонок
Оформление заявки
Оставьте заявку и получите:
Отправить заявку