Сайт может перестать корректно работать
Часть функционала сайта перестанет работать. Мы не сможем хранить персональные настройки и рекомендации.
Для полноценной работы всего сайта рекомендуем принять все cookie или выполнить настройку.
Отклонить
Настроить
Принять соглашение
Где искать:
Везде
Банковские продукты
Курсы валют
Статьи
MYFIN Справочник
Компании
Банковские отделения
Услуги для бизнеса
Лизинг
Авто
Деньги в долг
Инвестиции
Описание
Год постройки:2023
Материал стен:Блоки из ячеистого бетона
Этаж:25 из 25
Вода:Да
Отопление:Да
Электричество:Да
Возможное использование объекта:Аптека, Банк, Кафе, Магазин, Общепит, Стрит Ритейл, Сфера услуг, Учебный центр
Зарегистрировать юридический адрес:Да
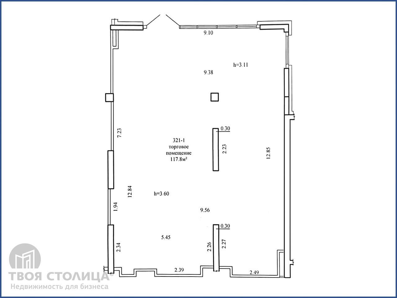
Пощадь:117.8м²
Цена за м²:56.82р. м²

Коммерческое помещение на первом этаже жилого дома "Барбадос" в квартале «Тропические острова » площадью 117.8 кв.м  комплекса Minsk World. Квартал расположен в восточной части комплекса. Выполнен качественный ремонт. Заселение возможно с 1 февраля 2026 г.
Коммуникации:
  • Центральное отопление.
  • Приточно-вытяжная вентиляция.
  • Электричество с разводкой 20 кВТ;
  • Холодная/горячая вода, сан/узел
  • Канализация.
Торговое помещение с витражным остеклением, окна выходят на сторону с хорошим трафиком. Объект находится в многоквартирной жилой новостройке 2023г постройки. Все дома квартала "Барбадос" имеют высоту 25 этажей. По улице заполнены торговые помещения - Cетевые ретейлеры, магазины, детские центры, кафе, сфера услуг, WB, Ozon и д.р.
Станция метро "Аэродромная" - 700 м , 2 остановки. . 5 мин до ТЦ «Авиа Молл» .


Арендатор не оплачивает услуги агентства.

Юридический адрес: Минск, пр. Независимости, д. 68, пом. 2, ком. 131

ОДО «Твоя столицаконсалт», лицензия выд. Минюстом 20.09.2006 № 02240/129, УНП 190285638, договор РУ от 22.12.2025 №116/2а Подробнее

Торговые - аренда. г. Минск, Жореса Алферова 12

6 692.89 р.
ТВОЯ СТОЛИЦАКОНСАЛТ
ТВОЯ СТОЛИЦАКОНСАЛТ ОДО
Коммерческая недвижимость
https://t-s.by
Минск, пр. Независимости, д. 68, пом. 2, ком. 131
УНП: 190285638
Лицензия: 02240/129
20.06.2024, 15:28
Оставьте заявку и получите:
Отправить заявку
Заказать звонок
Оформление заявки
Оставьте заявку и получите:
Отправить заявку