Сайт может перестать корректно работать
Часть функционала сайта перестанет работать. Мы не сможем хранить персональные настройки и рекомендации.
Для полноценной работы всего сайта рекомендуем принять все cookie или выполнить настройку.
Отклонить
Настроить
Принять соглашение
Где искать:
Везде
Банковские продукты
Курсы валют
Статьи
MYFIN Справочник
Компании
Банковские отделения
Услуги для бизнеса
Лизинг
Авто
Деньги в долг
Инвестиции
Описание
Год постройки:2011
Материал стен:Газосиликатные блоки
Этаж:20 из 20
Вода:Да
Отопление:Да
Электричество:Да
Зарегистрировать юридический адрес:Да
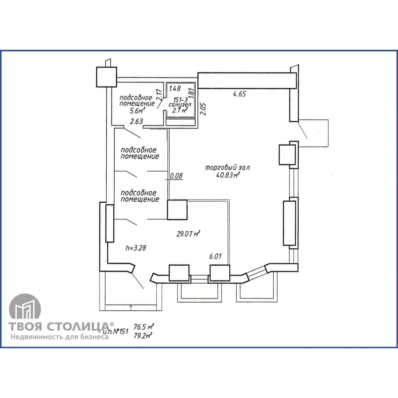
Пощадь:79.2м²
Цена за м²:4350.34р. м²

Продажа Торгового помещения в  г. Минске,  Бумажкова, 37а , площадью 79,2 кв. м.  Арендаторы: магазин товаров для животных и Груминг-салон.
 Помещение с двумя отдельными входами в жилом доме, высотой потолков 3,28 м, панорамными окнами, придомовая парковка в 10 метрах от помещения
Коммуникации и инженерия:
- Установлено видеонаблюдение и система кондиционирования.
- Центральное отопление, канализация.
- Интернет-оптоволокно.
- Пол - плитка, потолок - Армстронг.
- Остановки общественного транспорта в 5 минутах ходьбы, 3 остановки до станций метро "Академия наук" или "Тракторный завод"
Рядом расположен густонаселенный частный сектор, учреждения образования, Слепянская водная система, Ботанический сад
Подойдет как под инвестиции так и под свои нужны.

Покупатель не оплачивает услуги агентства!

 

Юридический адрес: Минск, пр. Независимости, д. 68, пом. 2, ком. 131

ОДО «Твоя столицаконсалт», лицензия выд. Минюстом 20.09.2006 № 02240/129, УНП 190285638, договор РУ от 13.02.2026 №58/6 Подробнее

Торговые - продажа. г. Минск, ул. Бумажкова 37

344 547.21 р.
ТВОЯ СТОЛИЦАКОНСАЛТ
ТВОЯ СТОЛИЦАКОНСАЛТ ОДО
Коммерческая недвижимость
https://t-s.by
Минск, пр. Независимости, д. 68, пом. 2, ком. 131
УНП: 190285638
Лицензия: 02240/129
14.04.2026, 10:27
Оставьте заявку и получите:
Отправить заявку
Заказать звонок
Оформление заявки
Оставьте заявку и получите:
Отправить заявку